Arts Thread

Georgina Johnson (louca)
Interior Design BA(Hons)

University of Chester

Graduates: 2024

Specialisms: Sustainable Design / Interior Architecture / Interior Design

My location: Chester, United Kingdom

georgina-louca ArtsThread Profile
University of Chester

Georgina Johnson (louca)

georgina-louca ArtsThread Profile

First Name: Georgina

Last Name: Johnson (louca)

University / College: University of Chester

Course / Program: Interior Design BA(Hons)

Graduates: 2024

Specialisms: Sustainable Design / Interior Architecture / Interior Design

My Location: Chester, United Kingdom

About

First Class Bachelor of Arts with Honours Interior Design graduate from Chester, England. After the 4 year program my final project PHYLLA- The Green Urban Lifestyle Project is nominated for Interior Educators awards summer 2024.

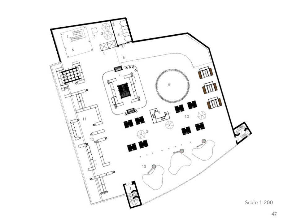
phyLLA - THE 'GREEN URBAN LIFESTYLE' PROJECT

The cost of living in the UK rose 5% in February 2024 compared to last year according to the UK Parliament, 2024. Climate change is affecting the farmland, the quality of food and the supply and thereby the population is seeing a spike in the cost of living. Partnered with urban population rapidly growing, this is impacting the environment and society. Phylla is an initiative to tackle both the shortage of fresh produce and to help aid those that are struggling to afford to eat healthier. Phylla philosophy is to adhere to the circular economy by minimising the impact on the community and environment by integrating sustainable practice with emphasis on community development. To focus on generating renewable energy through PV solar panel, protecting and conserving water and optimising operational and maintenance practices.